8 (800) 550 23 93 Звонок бесплатный
тел.: 8 800 550-23-93 звонок по России бесплатный Заказать звонок

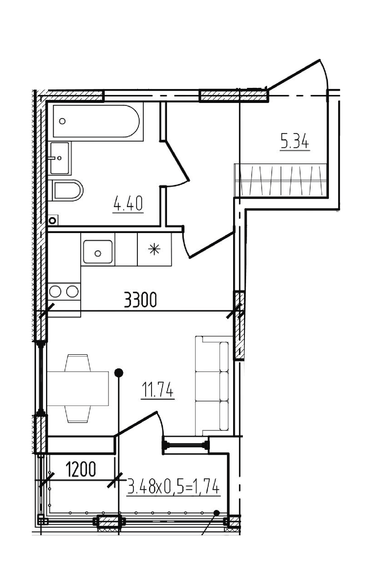
Квартира этаж 1, площадь 23.22 м2

Стоимость квартиры

6 455 160 a

Цена м2

278 000 a
Общая площадь: 23.22м2
Отделка: Предчистовая
Литер 20 (с ремонтом)
Срок сдачи: 2 кв. 2029
Подъезд: 1
Этаж: 1
Номер квартиры: 3

Способы оплаты

Ипотека, Материнский капитал, Наличный расчет

Рассчитать ипотеку

Первоначальный взнос

%

Срок (лет)

Ставка по кредиту: %

Расчёты являются базовыми. Для расчётов по ставкам ниже льготных базовых, а также сверх максимальных лимитов обращайтесь к специалистам Ассоциации застройщиков.

Платеж в месяц
Сумма кредита
Необходимый доход

Заказать звонок

* Поля обязательные для заполнения

Консультация по ипотеке

В нашем офисе вы можете подать заявку на ипотеку по 1 пакету документов в банки-партнеры, и мы сами проконтролируем ее одобрение

Заявка на ипотеку

В нашем офисе вы можете подать заявку на ипотеку по 1 пакету документов в банки-партнеры, и мы сами проконтролируем ее одобрение