8 (800) 550 23 93 Звонок бесплатный
тел.: 8 800 550-23-93 звонок по России бесплатный Заказать звонок

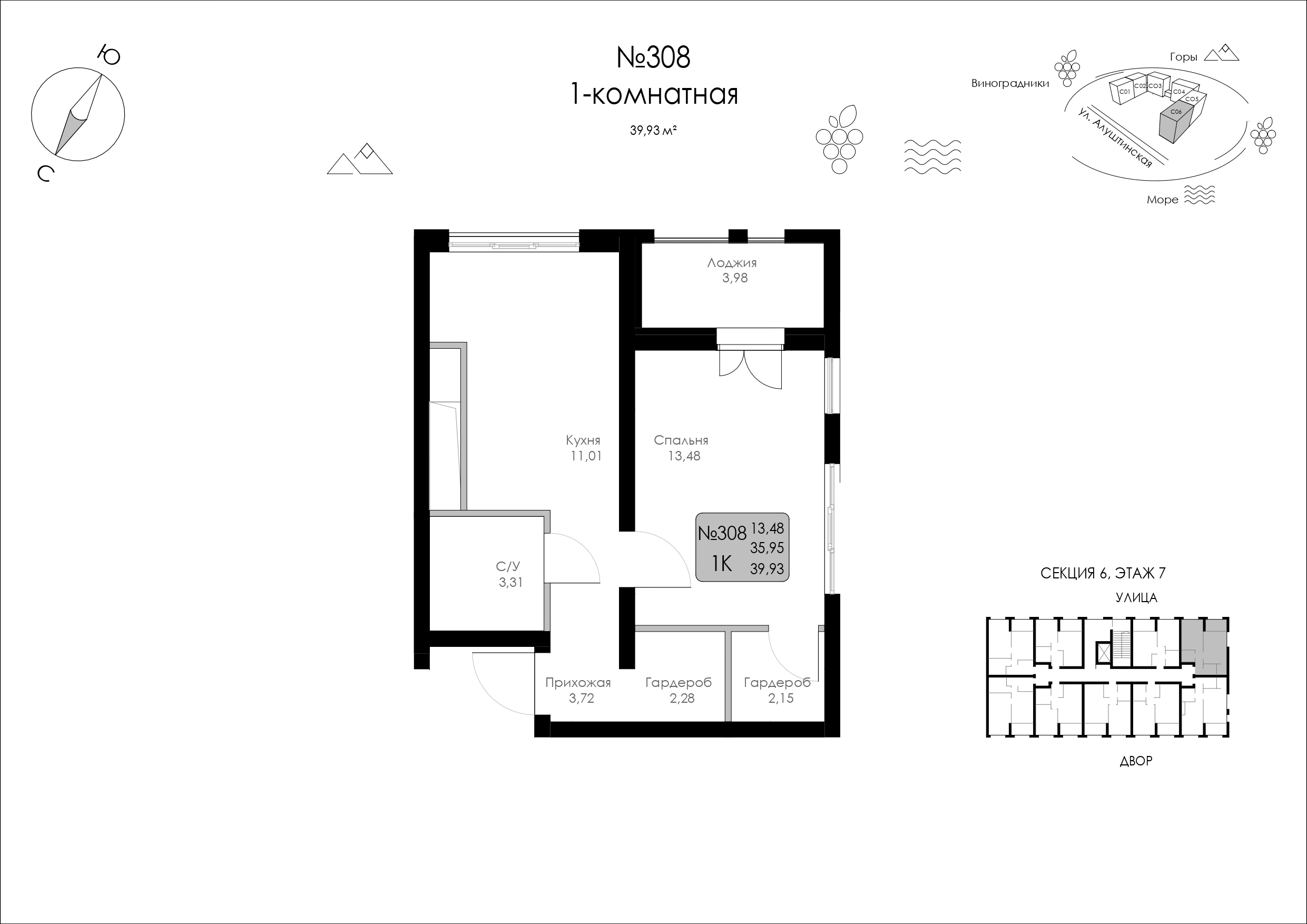
Квартира этаж 7, площадь 39.93 м2

Стоимость квартиры

15 658 480 a

Цена м2

392 148 a
Общая площадь: 39.93м2
Высота потолков: 2.83м
Отделка: Черновая
Литер 1
Срок сдачи: 1 кв. 2027
Подъезд: 6
Этаж: 7
Номер квартиры: 308

Способы оплаты

Рассрочка, Ипотека, Материнский капитал, Наличный расчет

Рассчитать ипотеку

Первоначальный взнос

%

Срок (лет)

Ставка по кредиту: %

Расчёты являются базовыми. Для расчётов по ставкам ниже льготных базовых, а также сверх максимальных лимитов обращайтесь к специалистам Ассоциации застройщиков.

Платеж в месяц
Сумма кредита
Необходимый доход

Заказать звонок

* Поля обязательные для заполнения

Консультация по ипотеке

В нашем офисе вы можете подать заявку на ипотеку по 1 пакету документов в банки-партнеры, и мы сами проконтролируем ее одобрение

Заявка на ипотеку

В нашем офисе вы можете подать заявку на ипотеку по 1 пакету документов в банки-партнеры, и мы сами проконтролируем ее одобрение