8 (800) 550 23 93 Звонок бесплатный
тел.: 8 800 550-23-93 звонок по России бесплатный Заказать звонок

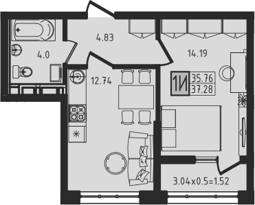
Квартира этаж 5, площадь 37.28 м2

Стоимость квартиры

Цена м2

Общая площадь: 37.28м2
Высота потолков: 2.74м
Отделка: Предчистовая
Корпус 1
Срок сдачи: 3 кв. 2026
Подъезд: 2
Этаж: 5
Номер квартиры: 109

Способы оплаты

Государственные сертификаты, Военная ипотека, Ипотека, Материнский капитал, Наличный расчет

Рассчитать ипотеку

Первоначальный взнос

%

Срок (лет)

Ставка по кредиту: %

Расчёты являются базовыми. Для расчётов по ставкам ниже льготных базовых, а также сверх максимальных лимитов обращайтесь к специалистам Ассоциации застройщиков.

Платеж в месяц
Сумма кредита
Необходимый доход

Заказать звонок

* Поля обязательные для заполнения

Консультация по ипотеке

В нашем офисе вы можете подать заявку на ипотеку по 1 пакету документов в банки-партнеры, и мы сами проконтролируем ее одобрение

Заявка на ипотеку

В нашем офисе вы можете подать заявку на ипотеку по 1 пакету документов в банки-партнеры, и мы сами проконтролируем ее одобрение